Leave a Message

Thank you for your message. We will be in touch with you shortly.

16904 11th Place W
16904 11th Place W
16904 11th Place W
VIEW PHOTOS
Provided by NWMLS, Listed by John L. Scott Everett
Keep Scrolling

$1,349,950

16904 11th Place W

5 Beds 3 Baths 2,977 Sq.Ft. 4,452 Sq.Ft.

Description

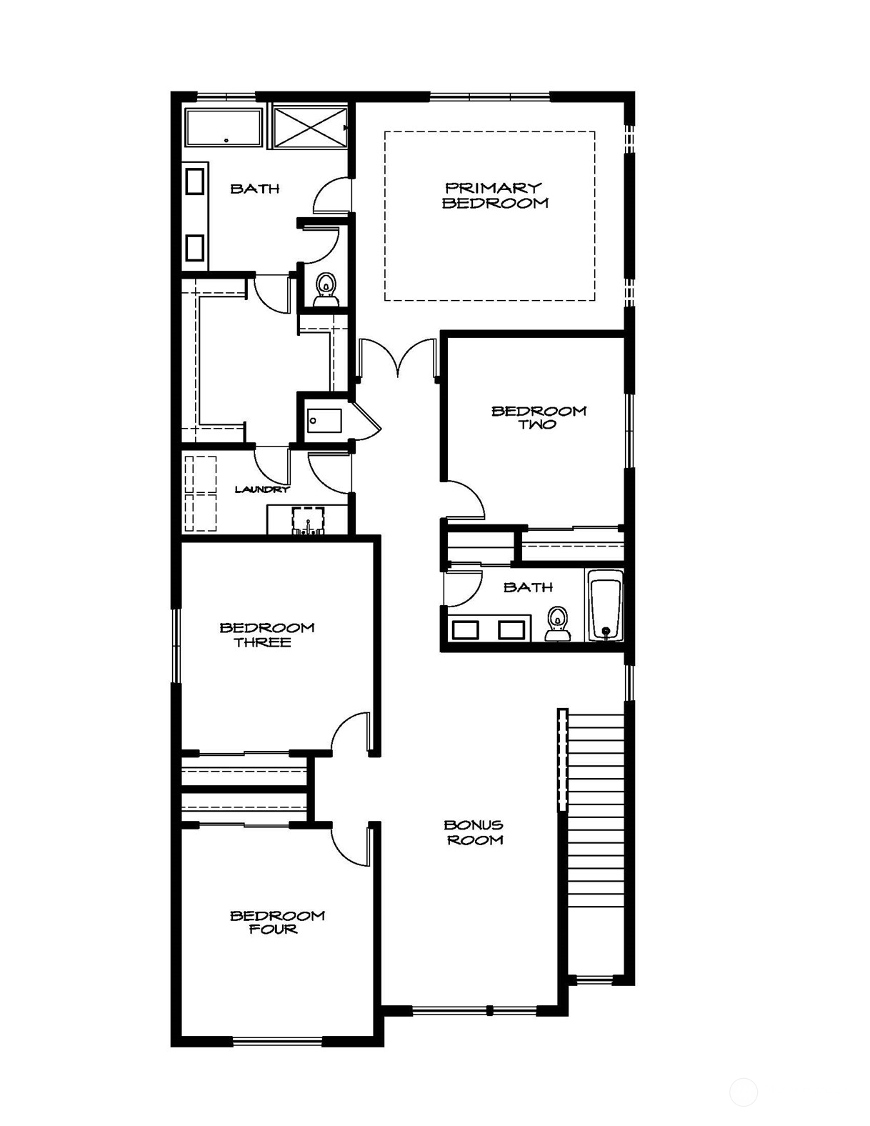
Welcome to Andrews Crossing! The Kingston, Unit 17, offers a spacious 2977 square-foot floorplan with 5 beds and 2.75 baths. The main floor features a bedroom, 3/4 bathroom, open kitchen, dining room and great room with a gas fireplace. Enjoy a covered patio with outdoor fireplace, full landscaping and a fully fenced backyard. The second floor features a bonus room, bedrooms, laundry and spacious primary bedroom with en suite bathroom and walk-in closet. Quality finishes include white cabinetry, stainless steel appliances, quartz counters, heat pump (providing A/C), Deako smart switches, garage door opener with remote & more! $20K BUYER BONUS! Site Registration policy - Buyers must register Broker on first visit.

Share Property

Location

16904 11th Place W, Lynnwood, WA 98037

Status

Sold

Property Amenities

Interior
Laundry room Electric Dryer Hookup
Fireplace Gas
Appliances Dishwashers_, Garbage Disposal_, Microwaves_, Stoves Ranges_
Flooring Ceramic Tile, Vinyl, Vinyl Plank, Carpet
Total Bedrooms: 5
Three-Quarter Bathrooms: 1
Full Bathrooms: 2
Other Interior Features Ceramic Tile, Wall to Wall Carpet, Balcony/Deck/Patio, Yard, Cooking-Gas, Dryer-Electric, Fireplace, Water Heater
Area & Lot
Total area 2,977 Sq.Ft.
Lot Area 4,452 Sq.Ft.
Living area 2,977 Sq.Ft.
MLS® ID 2190008
Year Built 2024
School District Edmonds
High School Buyer To Verify
Middle School Buyer To Verify
Elementary School Buyer To Verify
View Description Territorial
Architecture Styles Contemporary
Type Condo
Status Sold
Exterior
Stories 2
Air conditioning Forced Air, Heat Pump
Heat type Forced Air, Heat Pump
Garage Space 2.0
Other Exterior Features Stone, Wood Products
Parking Individual Garage
Lot Features Paved, Sidewalk
Roof Composition
Finance
Sales Price $1,349,950
HOA Fees $95 monthly
Deepti Gupta

Deepti Gupta

TITLE

Broker | Owner

LICENSE

135005

  1. 1
  2. 2
  3. 3

What's your home really worth?

What's your home really worth?

Your Home Valuation

Thank You! We are going to prepare a customized report with information on the value of your home.
View Our Listings

Lynnwood

Partner with Our Expert Team

Our team provides professional services in buying, selling, and investing areas, ensuring the best results for our valued clients. So, what are you waiting for? Reach out to us, and we will help you find a house that’ll make you feel at home!